Casa semindipendente in vendita

Ivrea, Via Cascinette - Fiorana
€ 137.000
11 locali 11 locali
250 Mq 250 Mq
3 bagni 3 bagni

Casa semindipendente in vendita

Ivrea, Via Cascinette - Fiorana

Descrizione annuncio

In zona fiorana casa trifamiliare immersa nel verde e caratterizzata da ampi spazi sia interni che esterni, ideali per chi desidera comfort, privacy e vivibilità.

La proprietà è composta da tre unità abitative distinte, tutte di metratura simile, soluzione perfetta per più nuclei familiari oppure per chi è alla ricerca di un interessante investimento. Grazie alla buona esposizione, l’abitazione gode inoltre di un’ottima luminosità naturale che valorizza gli ambienti durante tutto l’arco della giornata.

Al piano terra si sviluppa il primo appartamento, composto da cucina, accogliente soggiorno, doppi servizi e una camera da letto.

Salendo tramite una comoda scala esterna si accede al primo piano, dove troviamo il secondo appartamento caratterizzato da un ampio soggiorno, cucina abitabile, bagno e due camere da letto.

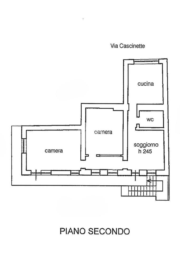
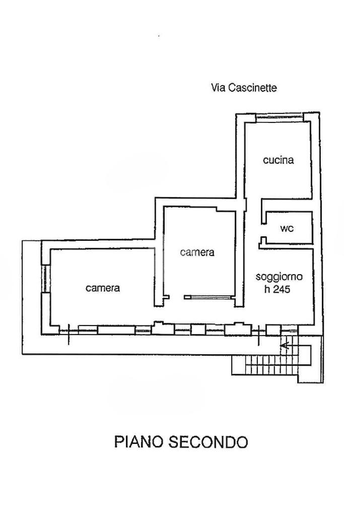
Al secondo ed ultimo piano è presente la terza unità abitativa, con una disposizione degli spazi identica a quella del piano inferiore, offrendo quindi soggiorno spazioso, cucina abitabile, bagno e due camere da letto.

Tutte le abitazioni si distinguono per gli ambienti ben distribuiti e per le metrature generose, che garantiscono grande vivibilità.

L’immobile si presenta in buono stato manutentivo e il tetto è stato rifatto e coibentato.

Esternamente la proprietà offre un ampio spazio aperto con ampi box auto, comode tettoie e zona barbecue ideale per momenti di convivialità all’aperto e circa 3.000 mq di terreno che circondano la casa, perfetti per chi desidera vivere in un contesto tranquillo e riservato, senza rinunciare alla comodità dei servizi.

Mostra tutto

Nelle vicinanze

Trasporto pubblico Trasporto pubblico
Ivrea
Ivrea
2,3 Km
Cascinette (Campo Sportivo)
Cascinette (Campo Sportivo)
190 m
Ivrea (v. Cascinette/Boschereggio)
Ivrea (v. Cascinette/Boschereggio)
230 m
Ricariche auto elettriche Ricariche auto elettriche
Conad Ivrea Corso Vercelli | EnelX
910 m
Duferco Re Umberto
1,6 Km
Scuole Scuole
Scuola Statale Primaria Vittorio Bachelet
340 m
Scuola Primaria Statale Fiorana
730 m
Scuola Secondaria di Primo grado Leonardo Da Vinci (Succursale)
1,3 Km
Scuola Primaria Statale Massimo d'Azeglio
1,4 Km
Liceo Classico Statale Carlo Botta
1,9 Km
Farmacia Farmacia
Farmacia Orlacchio
460 m
Parafarmacia Conad
950 m
Farmacia Rocchietta
1,4 Km
Farmacia Stragiotti
1,5 Km
Farmacia Fasano
1,9 Km
Ospedali Ospedali
Ospedale Civile Ivrea
2,1 Km
Clinica Eporediese
2,5 Km
Supermercati Supermercati
Lidl
630 m
Ekom
730 m
Carrefour Express
740 m
Conad
950 m
Penny Market
1,1 Km
Negozi Negozi
Miguel Moda Maschile
570 m
Compro Qui Alimentari
630 m
Sorelle Ramonda
650 m
Panetteria Il Buon Sapore del Pane
880 m
Pasta Fresca e Dolci - Rista
1,1 Km
Bar Bar
Bar Smeraldo
390 m
Bar Modina
850 m
Belushi
1,5 Km
Bar Tabacchi
2,9 Km
Ristoranti Ristoranti
Ristorante Cupido
580 m
Trattoria San Giovanni
740 m
Il pescatore 6
840 m
Ristorante Cinese Cina Garden
850 m
Ristorante Cinese La Muraglia
950 m
Mostra tutto

Caratteristiche

Rif.:
61187236
Piano:
3 di 3 (Piano su più livelli)
Box:
2
Posti auto:
4
Balconi:
2
Camere da letto:
6
Mostra tutto
Prezzo Prezzo
€ 137.000
Rata mutuo Rata mutuo
€ 640 / mese
Spese annue Spese annue
€ 0
Proponi il tuo prezzoProponi il tuo prezzo

Classe Energetica

Questo immobile è esente da classe energetica
Anno di costruzione:
1960
Riscaldamento:
Autonomo
Tipo impianto:
A radiatori
Tipo alimentazione:
Metano

Ti interessa visionare l'immobile?

Fissa un appuntamento  Fissa un appuntamento

Richiedi informazioni

Clicca su Leggi per aprire l'informativa
* Questi campi sono obbligatori

Calcola il tuo mutuo

Semplice e senza impegno
Anticipo

( % )
Mutuo

( % )

pochi semplici passi

inserisci i tuoi dati
Questionario completato
Grazie per aver richiesto un appuntamento senza impegno con un nostro Consulente del Credito e Assicurativo.

Hai inserito correttamente tutti i dati necessari e a breve riceverai una e-mail con un link da convalidare per inviare i tuoi dati.
Affiliato
Eporedia Uno Sas
Corso Massimo D'Azeglio, 21 10015 Ivrea (TO)

Il nostro staff


  • Riccardo Ronza
    Affiliato

  • Davide Bertino
    Collaboratore

  • Elisa Molinaro
    Coordinatrice

  • Elena Raso
    Responsabile

  • Francesco Rossetto
    Collaboratore

  • Sofia Violante
    Collaboratrice
Corso Massimo D'Azeglio, 21 10015 Ivrea (TO)
Zona: Ivrea zona Fiorana-Corso Vercelli-Porta Aosta-San Giovanni-Cascinette-Burolo-Bollengo-Albiano
Mostra su mappa
Orari: Lunedì: 09:00 - 12:30 / 14:30 - 19:30 Martedì: 09:00 - 12:30 / 14:30 - 19:30 Mercoledì: 09:00 - 12:30 / 14:30 - 19:30 Giovedì: 09:00 - 12:30 / 14:30 - 19:30 Venerdì: 09:00 - 12:30 / 14:30 - 19:30 Sabato: 09:00 - 12:30 / 14:30 - 18:00 Domenica: Chiuso
Affiliato
Eporedia Uno Sas
Corso Massimo D'Azeglio, 21 10015 Ivrea (TO)

2026 Tecnocasa Franchising S.p.A. - P. IVA 08365160152 - Via Monte Bianco 60/A 20089 Rozzano (MI). Ogni agenzia ha un proprio titolare ed è autonoma. Privacy policy | Policy utilizzo | Cookie policy