Bilocale in vendita

Ivrea, Via Alcide de Gasperi - San Lorenzo
€ 127.000
2 locali 2 locali
80 Mq 80 Mq
1 bagno 1 bagno

Bilocale in vendita

Ivrea, Via Alcide de Gasperi - San Lorenzo

Descrizione annuncio

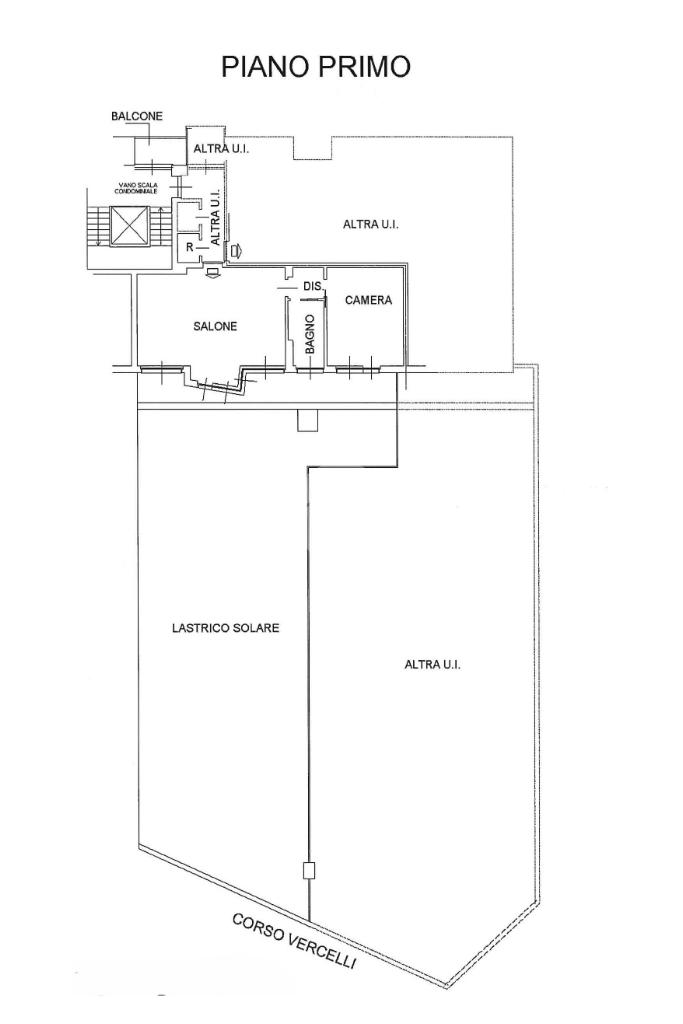
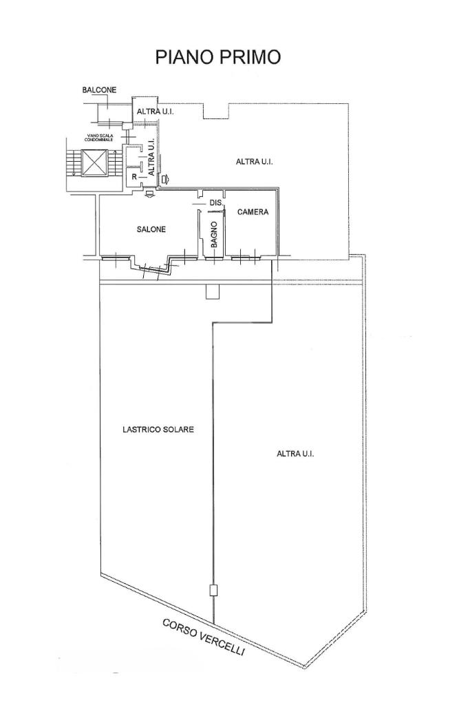
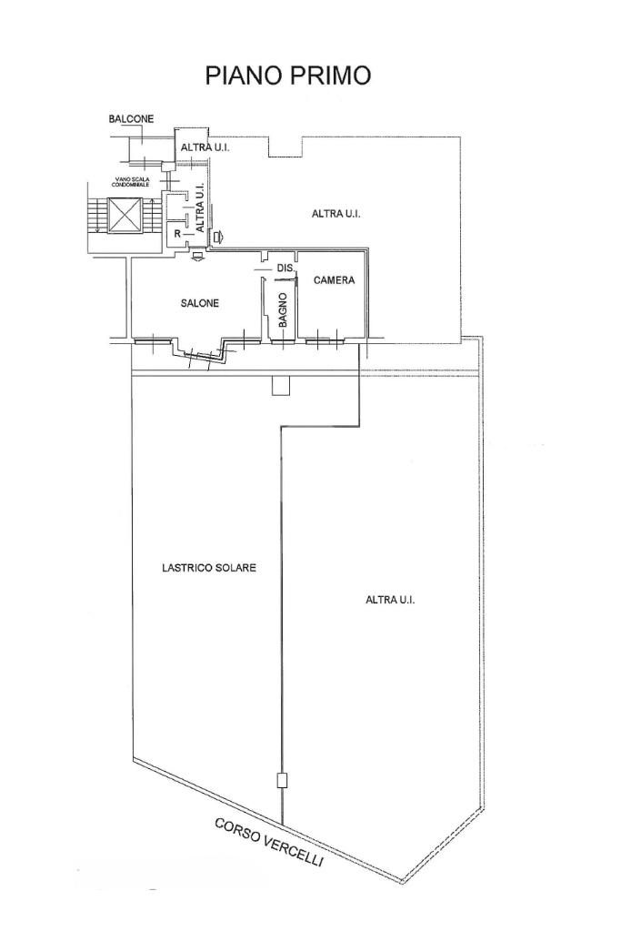
In zona San Lorenzo, comoda ai principali servizi, appartamento situato al primo piano di un contesto dotato di ascensore e privo di barriere architettoniche.

L’immobile, completamente ristrutturato nel 2014, è attualmente locato con regolare contratto, rappresentando un’interessante opportunità anche ad uso investimento.

L’ingresso, tramite porta blindata, conduce alla zona giorno composta da un soggiorno luminoso con angolo cottura; gli ambienti risultano ben distribuiti e particolarmente ariosi grazie all’ottima esposizione. Proseguendo si accede alla zona notte, dove troviamo una camera da letto e un bagno finestrato dotato di doccia.

Il vero punto di forza dell’abitazione è l’ampio terrazzo, ideale per trascorrere piacevoli momenti di relax all’aperto.

Possibilità di box auto.

Mostra tutto

Nelle vicinanze

Trasporto pubblico Trasporto pubblico
Ivrea
Ivrea
1,1 Km
Ivrea (v. Cascinette/S.Lorenzo APT)
Ivrea (v. Cascinette/S.Lorenzo APT)
50 m
Ivrea (C.so Vercelli/S.Lorenzo APT)
Ivrea (C.so Vercelli/S.Lorenzo APT)
50 m
Ricariche auto elettriche Ricariche auto elettriche
Duferco Re Umberto
460 m
Conad Ivrea Corso Vercelli | EnelX
1,6 Km
Scuole Scuole
Scuola Primaria Statale Massimo d'Azeglio
310 m
Scuola Secondaria di Primo grado Leonardo Da Vinci (Succursale)
390 m
Scuola Primaria Statale Fiorana
420 m
Liceo Classico Statale Carlo Botta
780 m
Istituto Tecnico Commerciale e per Geometri Giovanni Cena
840 m
Farmacia Farmacia
Farmacia Rocchietta
290 m
Farmacia Stragiotti
500 m
Farmacia Fasano
820 m
farmacia Dora s.n.c.
1,2 Km
Farmacia Linda
1,2 Km
Ospedali Ospedali
Ospedale Civile Ivrea
1,1 Km
Clinica Eporediese
1,6 Km
Supermercati Supermercati
Carrefour Express
20 m
Lidl
600 m
Bennet
1,1 Km
Ekom
1,3 Km
Conad
1,6 Km
Negozi Negozi
Rosso Fragola
50 m
Panetteria Pizza Doc
70 m
Panetteria F.lli Zoppo
120 m
Pasta Fresca e Dolci - Rista
160 m
Freestyle
180 m
Bar Bar
Belushi
500 m
Bar Modina
1,5 Km
Bar Smeraldo
1,5 Km
Enoteca Bar AStor
2,0 Km
Ristoranti Ristoranti
La Bussola
50 m
Ristorante Cinese La Muraglia
250 m
Pizzeria Eporediese
310 m
Ristorante Cinese Cina Garden
480 m
Trattoria dei Tigli
500 m
Mostra tutto

Caratteristiche

Rif.:
61199679
Piano:
1 di 7 con ascensore (Piano basso)
Posti auto:
1
Terrazzi:
1
Camere da letto:
1
Arredamento:
Assente
Mostra tutto
Prezzo Prezzo
€ 127.000
Rata mutuo Rata mutuo
€ 602 / mese
Spese annue Spese annue
€ 1.600
Proponi il tuo prezzoProponi il tuo prezzo

Classe Energetica

C
C
C
C
C
C
C
C
C
EP globale non rinnovabile:
127.00 kW h/m² anno
EP globale rinnovabile:
27.00 kW h/m² anno
EP invernale del fabbricato:
EP estiva del fabbricato:
Anno di costruzione:
1970
Riscaldamento:
Centralizzato
Tipo impianto:
A radiatori
Tipo alimentazione:
Metano

Ti interessa visionare l'immobile?

Fissa un appuntamento  Fissa un appuntamento

Richiedi informazioni

Clicca su Leggi per aprire l'informativa
* Questi campi sono obbligatori

Calcola il tuo mutuo

Semplice e senza impegno
Anticipo

( % )
Mutuo

( % )

pochi semplici passi

inserisci i tuoi dati
Questionario completato
Grazie per aver richiesto un appuntamento senza impegno con un nostro Consulente del Credito e Assicurativo.

Hai inserito correttamente tutti i dati necessari e a breve riceverai una e-mail con un link da convalidare per inviare i tuoi dati.
Affiliato
Eporedia Uno Snc
Corso Massimo D'Azeglio, 21 10015 Ivrea (TO)

Il nostro staff


  • Riccardo Ronza
    Affiliato

  • Davide Bertino
    Collaboratore

  • Elisa Molinaro
    Coordinatrice

  • Elena Raso
    Affiliata

  • Francesco Rossetto
    Collaboratore

  • Sofia Violante
    Collaboratrice
Corso Massimo D'Azeglio, 21 10015 Ivrea (TO)
Zona: Ivrea zona Fiorana-Corso Vercelli-Porta Aosta-San Giovanni-Cascinette-Burolo-Bollengo-Albiano
Mostra su mappa
Orari: Lunedì: 09:00 - 12:30 / 14:30 - 19:30 Martedì: 09:00 - 12:30 / 14:30 - 19:30 Mercoledì: 09:00 - 12:30 / 14:30 - 19:30 Giovedì: 09:00 - 12:30 / 14:30 - 19:30 Venerdì: 09:00 - 12:30 / 14:30 - 19:30 Sabato: 09:00 - 12:30 / 14:30 - 18:00 Domenica: Chiuso
Affiliato
Eporedia Uno Snc
Corso Massimo D'Azeglio, 21 10015 Ivrea (TO)

2026 Tecnocasa Franchising S.p.A. - P. IVA 08365160152 - Via Monte Bianco 60/A 20089 Rozzano (MI). Ogni agenzia ha un proprio titolare ed è autonoma. Privacy policy | Policy utilizzo | Cookie policy