Quadrilocale in vendita

Ivrea, Via Alcide de Gasperi - San Lorenzo
€ 189.000
4 locali 4 locali
120 Mq 120 Mq
2 bagni 2 bagni

Quadrilocale in vendita

Ivrea, Via Alcide de Gasperi - San Lorenzo

Descrizione annuncio

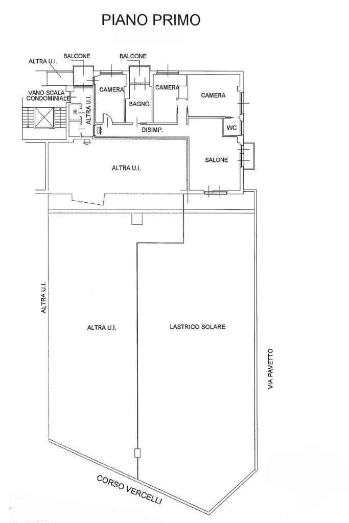
In zona San Lorenzo, una posizione particolarmente apprezzata per la sua comodità ai principali servizi, tra cui supermercati, farmacia e il centro facilmente raggiungibile, appartamento sito al primo piano in condominio con ascensore, l’immobile è stato completamente ristrutturato nel 2014, offrendo ambienti moderni e curati. Attualmente locato con regolare contratto d'affitto.

L’ingresso si apre su un disimpegno che conduce alla zona giorno, caratterizzata da un’accogliente area open space con angolo cottura e soggiorno, perfetta per vivere momenti di convivialità. Da qui si accede direttamente all’ampio terrazzo, uno spazio ideale per rilassarsi all’aperto.

La zona notte si compone di tre camere da letto, di cui una matrimoniale e due singole, ben distribuite e luminose, oltre a doppi servizi, di cui uno privato all’interno della camera matrimoniale. Completano la proprietà, oltre al grande terrazzo, anche tre balconi che garantiscono ulteriori sfoghi esterni.

A completare la soluzione è presente anche una comoda cantina.

Possibilità di box auto.

Grazie alla sua esposizione, l’appartamento gode di un’ottima luminosità naturale durante tutto il giorno, rendendo ogni ambiente ancora più accogliente e piacevole da vivere.

Mostra tutto

Nelle vicinanze

Trasporto pubblico Trasporto pubblico
Ivrea
Ivrea
1,1 Km
Ivrea (v. Cascinette/S.Lorenzo APT)
Ivrea (v. Cascinette/S.Lorenzo APT)
50 m
Ivrea (C.so Vercelli/S.Lorenzo APT)
Ivrea (C.so Vercelli/S.Lorenzo APT)
50 m
Ricariche auto elettriche Ricariche auto elettriche
Duferco Re Umberto
460 m
Conad Ivrea Corso Vercelli | EnelX
1,6 Km
Scuole Scuole
Scuola Primaria Statale Massimo d'Azeglio
310 m
Scuola Secondaria di Primo grado Leonardo Da Vinci (Succursale)
390 m
Scuola Primaria Statale Fiorana
420 m
Liceo Classico Statale Carlo Botta
780 m
Istituto Tecnico Commerciale e per Geometri Giovanni Cena
840 m
Farmacia Farmacia
Farmacia Rocchietta
290 m
Farmacia Stragiotti
500 m
Farmacia Fasano
820 m
farmacia Dora s.n.c.
1,2 Km
Farmacia Linda
1,2 Km
Ospedali Ospedali
Ospedale Civile Ivrea
1,1 Km
Clinica Eporediese
1,6 Km
Supermercati Supermercati
Carrefour Express
20 m
Lidl
600 m
Bennet
1,1 Km
Ekom
1,3 Km
Conad
1,6 Km
Negozi Negozi
Rosso Fragola
50 m
Panetteria Pizza Doc
70 m
Panetteria F.lli Zoppo
120 m
Pasta Fresca e Dolci - Rista
160 m
Freestyle
180 m
Bar Bar
Belushi
500 m
Bar Modina
1,5 Km
Bar Smeraldo
1,5 Km
Enoteca Bar AStor
2,0 Km
Ristoranti Ristoranti
La Bussola
50 m
Ristorante Cinese La Muraglia
250 m
Pizzeria Eporediese
310 m
Ristorante Cinese Cina Garden
480 m
Trattoria dei Tigli
500 m
Mostra tutto

Caratteristiche

Rif.:
61192638
Piano:
1 di 7 con ascensore (Piano basso)
Posti auto:
1
Balconi:
3
Terrazzi:
1
Camere da letto:
3
Mostra tutto
Prezzo Prezzo
€ 189.000
Rata mutuo Rata mutuo
€ 898 / mese
Spese annue Spese annue
€ 1.600
Proponi il tuo prezzoProponi il tuo prezzo

Classe Energetica

D
D
D
D
D
D
D
D
D
EP globale non rinnovabile:
192.00 kW h/m² anno
EP globale rinnovabile:
90.69 kW h/m² anno
EP invernale del fabbricato:
EP estiva del fabbricato:
Anno di costruzione:
1970
Riscaldamento:
Centralizzato
Tipo impianto:
A radiatori
Tipo alimentazione:
Metano

Ti interessa visionare l'immobile?

Fissa un appuntamento  Fissa un appuntamento

Richiedi informazioni

Clicca su Leggi per aprire l'informativa
* Questi campi sono obbligatori

Calcola il tuo mutuo

Semplice e senza impegno
Anticipo

( % )
Mutuo

( % )

pochi semplici passi

inserisci i tuoi dati
Questionario completato
Grazie per aver richiesto un appuntamento senza impegno con un nostro Consulente del Credito e Assicurativo.

Hai inserito correttamente tutti i dati necessari e a breve riceverai una e-mail con un link da convalidare per inviare i tuoi dati.
Affiliato
Eporedia Uno Snc
Corso Massimo D'Azeglio, 21 10015 Ivrea (TO)

Il nostro staff


  • Riccardo Ronza
    Affiliato

  • Davide Bertino
    Collaboratore

  • Elisa Molinaro
    Coordinatrice

  • Elena Raso
    Affiliata

  • Francesco Rossetto
    Collaboratore

  • Sofia Violante
    Collaboratrice
Corso Massimo D'Azeglio, 21 10015 Ivrea (TO)
Zona: Ivrea zona Fiorana-Corso Vercelli-Porta Aosta-San Giovanni-Cascinette-Burolo-Bollengo-Albiano
Mostra su mappa
Orari: Lunedì: 09:00 - 12:30 / 14:30 - 19:30 Martedì: 09:00 - 12:30 / 14:30 - 19:30 Mercoledì: 09:00 - 12:30 / 14:30 - 19:30 Giovedì: 09:00 - 12:30 / 14:30 - 19:30 Venerdì: 09:00 - 12:30 / 14:30 - 19:30 Sabato: 09:00 - 12:30 / 14:30 - 18:00 Domenica: Chiuso
Affiliato
Eporedia Uno Snc
Corso Massimo D'Azeglio, 21 10015 Ivrea (TO)

2026 Tecnocasa Franchising S.p.A. - P. IVA 08365160152 - Via Monte Bianco 60/A 20089 Rozzano (MI). Ogni agenzia ha un proprio titolare ed è autonoma. Privacy policy | Policy utilizzo | Cookie policy